Instalações

• Teto Rebaixado • Sprinkler • Piso Elevado • Luminárias • Elevadores • Detector de Fumaça • Copa • Cabeamento • Ar Condicionado Central

Descrição

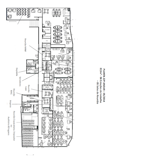
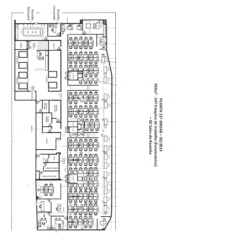
Aluguel de andares corporativos no Centro do Rio. Av. Presidente Vargas esquina com Av. Rio Branco. Vista panorâmica. Cobertura duplex com escada interna de interligação. Instalado com ar condicionado central, carpete, persianas, luminárias, divisórias, 4 copas, 10 banheiros, 5 salas de reunião e um auditório. 5 vagas de garagem no prédio ao lado (Av. Presidente Vargas 487 - Edifício garagem). Preço de cada vaga: R$ 850,00

Endereço
  • Logradouro: Av. Presidente Vargas
  • Condomínio:
  • Cidade: Rio de Janeiro
  • Região: Centro
  • Bairro: Centro
  • Estado: RJ
Informações
  • Padrões do prédio: AA
  • Ocupação: Vazio
  • Estruturas: • Teto Rebaixado • Sprinkler • Piso Elevado • Luminárias • Elevadores • Detector de Fumaça • Copa • Cabeamento • Ar Condicionado Central
  • Obs. Ocupação:
  • Vagas: 5
Valores
  • Valor Venda: 14.200.000,00
  • Valor locação: 88.800,00
  • Valor do m² de venda: 7.995,50
  • Valor Luvas:
  • Valor Foro:
  • Valor Laudemio:
  • Valor Instalações:
  • Valor do m² de locação: 50,00
  • Valor Condomínio: 28.663,85
  • Valor IPTU: 8.125,57
Detalhes
  • Área Construída:
  • Área Útil: 1.776,00
  • Controle de Acesso: Sim
  • Centro de convenção: Não
  • Área Privativa: 1.776,00
  • Área do Terreno:
  • Perfis: